Neighborhoods
Available Homes
Floor Plans
Features
About
Contact
Townhome Plan 1660
Home
Floor Plans
Townhome Plan 1660
Townhome Plan 1660
BEDS:
3
STORIES:
2
BATHS:
3
GARAGE:
2
SQ FT:
1660
VIEW FLOOR PLAN
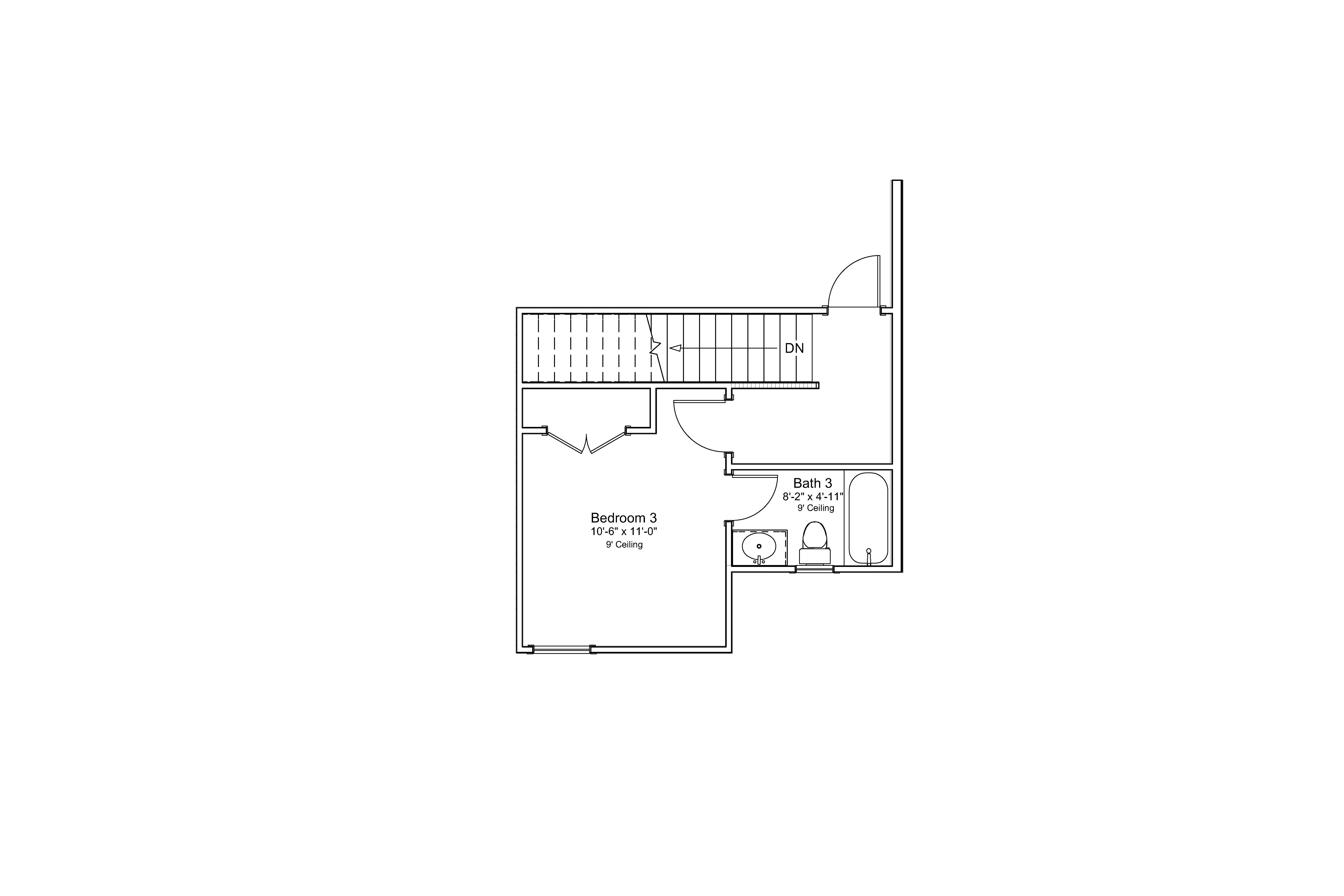
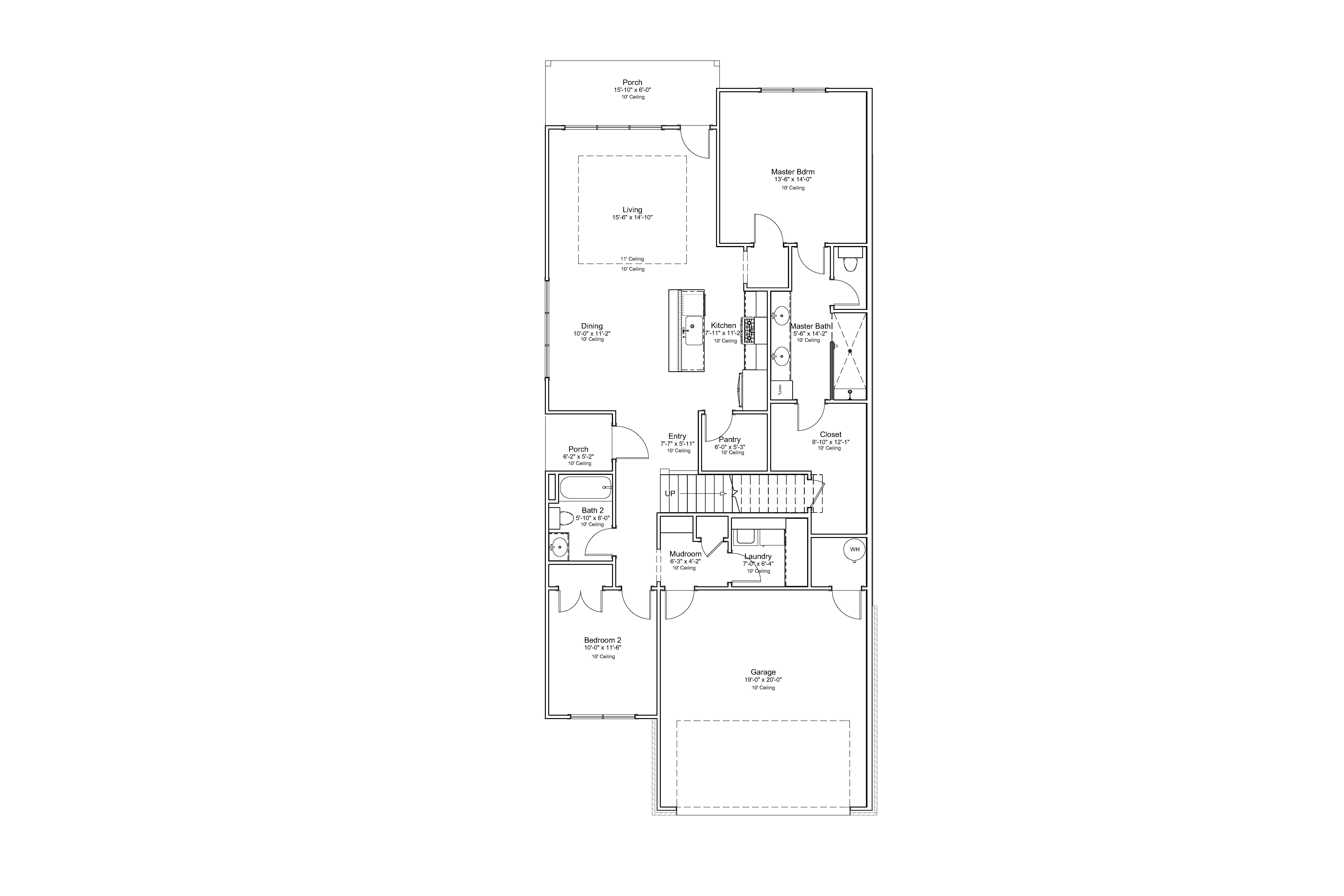
FIRST FLOOR
SECOND FLOOR
FLOOR PLANS
Townhome Plan 1715
Beds
3
BATHS
2.5
STORIES
2
SQUARE FEET
1715
GARAGE
2
VIEW DETAILS
Plan 1918
Beds
4
BATHS
3
STORIES
1
SQUARE FEET
1918
GARAGE
2
VIEW DETAILS
Townhome Plan 1660
Beds
3
BATHS
3
STORIES
2
SQUARE FEET
1660
GARAGE
2
VIEW DETAILS
VIEW ALL FLOOR PLANS